30 Previous Next 501044 Sale, Residential, Apartment NEOS KOSMOS - AGIOS IOANNIS 1 1 1 (1st) 68 m2 1970 134000
1 Previous Next 289427 Sale, Land, Professional Plot GAZI - METAXOURGIO - VOTANIKOS - GAZI 170 m2 350000
10 Previous Next 491630 Sale, Residential, Apartment KOLONAKI - LYCABETTUS - KOLONAKI 1 1 1 (1st) 24 m2 1987 115000
10 Previous Next 502459 Sale, Residential, Apartment KOLONOS - KOLOKINTHOUS - KOLOKINTHOUS 2 1 1 (1st) 81 m2 1960 100000
22% below average price 9 Previous Next 497583 Sale, Residential, Apartment PATISION - ACHARNON - KATO PATISIA 1 1 3 (3rd) 50 m2 1974 70000
11 Previous Next 493907 Sale, Commercial, Industrial KIPSELI - ANO KIPSELI - EVELPIDON 0 0 (Semi-basement) 81 m2 1981 125000
3 Previous Next 493521 Sale, Residential, Apartment NEOS KOSMOS - CENTER 1 1 0 (Ground Floor) 0 60 m2 1976 250000
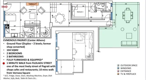
8 Previous Next 363295 Sale, Residential, House PAGRATI - CENTER PAGRATIOU 4 1 0 (Ground Floor) 1 201 m2 1960 800000
4 Previous Next 502661 Sale, Residential, Apartment PETRALONA - ANO PETRALONA 1 1 0 (Elevated ground floor) 50 m2 1965 120000
30 Previous Next 484270 Sale, Residential, Apartment PAGRATI - CENTER PAGRATIOU 1 1 0 (Elevated ground floor) 54 m2 1967 140000
11 Previous Next 502257 Sale, Residential, Apartment PAGRATI - CENTER PAGRATIOU 2 2 0 (Ground Floor) 104 m2 1979 275000
23 Previous Next 456710 Sale, Residential, Apartment PATISIA - PLATIA KOLIATSOU 1 1 0 (Elevated ground floor) 47 m2 1970 87000
21 Previous Next 369285 Sale, Commercial, Hotel CENTER - OMONIA 30 6 0 (Ground Floor) 1074 m2 1923 1850000
8 Previous Next 474603 Sale, Residential, Apartment NEOS KOSMOS - CENTER 2 2 0 (Ground Floor) 50 m2 2000 260600
6 Previous Next 474615 Sale, Residential, Apartment NEOS KOSMOS - CENTER 2 2 4 (4th) 47 m2 2000 282200
6 Previous Next 474606 Sale, Residential, Apartment NEOS KOSMOS - CENTER 2 2 1 (1st) 43 m2 2000 246300
10 Previous Next 478968 Sale, Commercial, Office ABELOKIPI - PLATIA MAVILI 1 2 (2nd) 118 m2 1973 500000
38 Previous Next 486961 Sale, Commercial, Independent Building ISTORIKO CENTER - THISIO 5 3 0 (Ground Floor) 264 m2 1955 730000
37 Previous Next 486686 Sale, Residential, Building ISTORIKO CENTER - THISIO 5 3 0 (Ground Floor) 264 m2 1955 730000
36% below average price 27 Previous Next 486692 Sale, Residential, Floor Apartment ISTORIKO CENTER - THISIO 2 1 1 (1st) 132 m2 1963 400000
24 Previous Next 487084 Sale, Commercial, Office ISTORIKO CENTER - THISIO 2 1 1 (1st) 132 m2 1963 400000
14 Previous Next 498679 Sale, Residential, Apartment KOLONAKI - LYCABETTUS - KOLONAKI 2 1 1 (1st) 0 67 m2 1970 400000
47% below average price 5 Previous Next 468600 Sale, Residential, Apartment GAZI - METAXOURGIO - VOTANIKOS - METAXOURGIO 1 1 2 (2nd) 57 m2 1977 79500
17 Previous Next 492427 Sale, Commercial, Office PAGRATI - ALSOS PAGRATIOU 2 1 1 (1st) 102 m2 1963 230000
7 Previous Next 462479 Sale, Residential, Apartment ANO PATISIA - KIPRIADOU - ANO PATISIA 2 1 1 (1st) 84 m2 1980 135000
18% below average price 8 Previous Next 451002 Sale, Residential, Apartment PETRALONA - ANO PETRALONA 1 1 0 (Elevated ground floor) 60 m2 1978 135000
14 Previous Next 501702 Sale, Residential, Apartment PAGRATI - AGIOS ARTEMIOS 1 1 3 (3rd) 50 m2 1969 200000
2 Previous Next 493589 Sale, Land, Residential AGIOS ELEFTHERIOS - PROBONA - RIZ - PROBONA 154 m2 170000