Sale, Commercial, Independent Building

PATRA - PATRA - CENTER

Property Code: 337716

Floor 0 (Ground Floor)
Parking 0
Area 1200 m2
Construction 1930

3300000

or by acquiring a mortgage €/ΜONTH

2750 € / m2

Modify Date: 09/02/26

Description

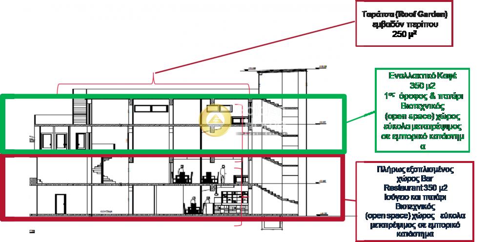
A rare mix of commercial and craft property (these are 2 partition properties) with amazing street plan and unique architectural style in a prominent position in the center of Patras. The city is located 215km from Athens and 77km from Kalavrita which is full of students community).

Interested in this property?

Now through the website goldenhome.gr you can send a direct request for an appointment to show the property you are interested in. The service is completely free, fill in your details

Years of Operation : 80
Input Height (cm) : 3.00
Storehouse : Yes, In the space
Elevator : Yes
Floor : Tile, Oak
Area configuration : Big halls
Double glazing : No
Equipment : Ventilation, Cooling - Heating, Structured wiring, Movable partitions, Suspended ceilings, Alarm system, Other
Heating : Air condition, Central air-condition system
Property status : Good
Previous use : Commercial
Fire detection : Yes
Fire extinguishment : Yes
Alarm : Yes
Type Power : Three phase
Natural Gas : No
Beneficial Height : 5.00
Number of WC : 4
Level Separation : Main
Air conditioning : Cooling - Heating
Kitchen : Yes
Security door : No
Floor height : 5,00
Level Usage : Commercial
Refrigeration : Split system air condition
Renovation : Some
Number of WC : 2
Level Separation : Main
Air conditioning : Cooling - Heating
Kitchen : Yes
Security door : No
Floor height : 3,00
Level Usage : Commercial
Refrigeration : Air condition with air duct
Remaining Duration : 2025
Rental Performance : 3300
Floor Strength kg/m2 : 1500
Input Width (cm) : 4.00
Start of Hire : 1/1/1972
Loading and unloading ramps : 2
Label Capability : Yes
Position : Double frontage, Densely populated area
Lawn : No
Access : Suburban, Bus, KTEL (Bus transport) , OSE (train)
Security building : No
Use Area : Tourism, Commercial, Inside the zoning area
Property type : Autonomous building
Type of Construction : Conventional
Energy Class : F
Shared bills : 0
Plans - Contracts : Conventional, Layouts, Regulation, Site plan, Permission
Floor area : 600
Floor area : 600

Loan Calculation

Loan Amount *Minimum loan amount 10.000€ Floating Interest Rate: Euribor 3M (indicatively 2%) + spread (from 1.75%) + contribution L.128/75 (0.12%) Fixed Interest Rate: from 2.8% + contribution L.128/75 (0.12%)
Loan Interest
Loan Repayment Period

Example: Loan of €100,000, total duration 30 years. For the first three years, final interest rate 2.92% and for the remaining 27 years, final interest rate 4%. Indicative installment for the first three years ~€420 and for the remaining 27 years ~€500

Indicative Installment Amount

Interest Amount:
*The final interest rate is determined based on the mortgage loan program (floating, hybrid, fixed) and the borrower's profile.

Looking for the perfect home? Get the financing you need! Click the button below to register your interest in a mortgage loan.

CALL US