Sale, Commercial, Independent Building

PATRA - PATRA - CENTER

Property Code: 337720

Bathrooms 0
Floor 0 (Ground Floor)
Parking 0
Area 800 m2
Construction 1930

1000000

or by acquiring a mortgage €/ΜONTH

1250 € / m2

Modify Date: 09/02/26

Description

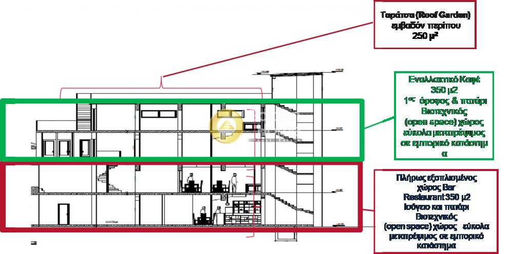
A rare artisanal property of 800 m2 in a prominent position in the center of the city. It is 215 km from Athens and 77 km from Kalavryta. The city is bustling with students (60,000 student community), with an amazing layout and distinct architectural style. It houses a restaurant, an entertainment shop and a roof garden on the roof.

Interested in this property?

Now through the website goldenhome.gr you can send a direct request for an appointment to show the property you are interested in. The service is completely free, fill in your details

Years of Operation : 80
Input Height (cm) : 300
Storehouse : Yes, In the space
Elevator : Yes
Floor : Tile, Oak
Area configuration : Big halls
Double glazing : No
Equipment : Ventilation, Cooling - Heating, Structured wiring, Movable partitions, Suspended ceilings, Alarm system, Other
Heating : Air condition, Central air-condition system
Property status : Renovated, Medium
Previous use : Commercial
Fire detection : Yes
Fire extinguishment : Yes
Alarm : Yes
Type Power : Three phase
Natural Gas : No
Beneficial Height : 500
Number of WC : 4
Level Separation : Main
Air conditioning : Cooling - Heating
Kitchen : Yes
Security door : No
Floor height : 400
Level Usage : Commercial
Refrigeration : Split system air condition
Renovation : Some
Number of WC : 2
Level Separation : Main
Air conditioning : Cooling - Heating
Kitchen : Yes
Security door : No
Floor height : 3,00
Level Usage : Commercial
Refrigeration : Air condition with air duct
Storehouse (s.m.) : 30
Rental Performance : 3300
Input Width (cm) : 200
Loading and unloading ramps : 200
Start of Hire : 01/01/2015
Remaining Duration : 1/1/2025
Label Capability : Yes
Position : Double frontage, Densely populated area
Lawn : No
Access : Suburban, Bus, KTEL (Bus transport) , OSE (train)
Security building : No
Use Area : Tourism, Commercial, Inside the zoning area
Property type : Autonomous building
Type of Construction : Conventional
Energy Class : C
Shared bills : 0
Plans - Contracts : Conventional, Layouts, Regulation, Site plan, Permission
Floor area : 400
Floor area : 400

Loan Calculation

Loan Amount *Minimum loan amount 10.000€ Floating Interest Rate: Euribor 3M (indicatively 2%) + spread (from 1.75%) + contribution L.128/75 (0.12%) Fixed Interest Rate: from 2.8% + contribution L.128/75 (0.12%)
Loan Interest
Loan Repayment Period

Example: Loan of €100,000, total duration 30 years. For the first three years, final interest rate 2.92% and for the remaining 27 years, final interest rate 4%. Indicative installment for the first three years ~€420 and for the remaining 27 years ~€500

Indicative Installment Amount

Interest Amount:
*The final interest rate is determined based on the mortgage loan program (floating, hybrid, fixed) and the borrower's profile.

Looking for the perfect home? Get the financing you need! Click the button below to register your interest in a mortgage loan.

CALL US