Sale, Residential, Floor Maisonette

GLYFADA - KATO GLYFADA

Property Code: 457097

Rooms 4
Bathrooms 4
Floor 0 (Ground Floor)
Parking 2
Area 202 m2
Construction 2027

1320000

or by acquiring a mortgage €/ΜONTH

6534.6534653465 € / m2

Modify Date: 18/10/25

Description

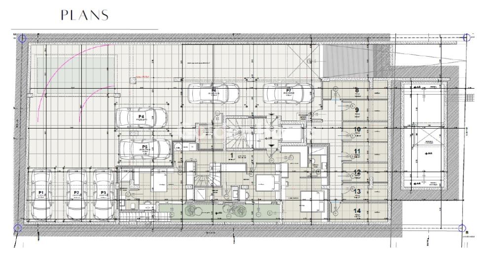
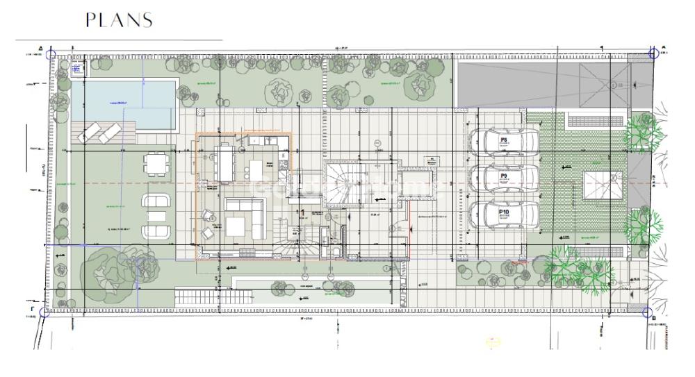
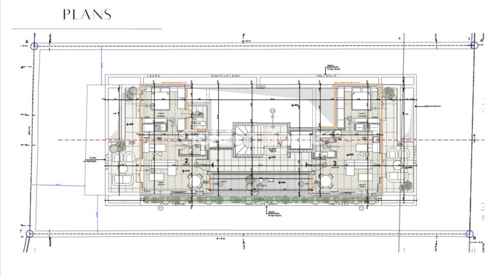
In the vibrant area of Kato Glyfada, within a modern residential building, a stunning newly built 190 sq.m. maisonette unfolds over three levels: the basement (-1), the ground floor, and the first floor. This spacious home features four large master bedrooms, each with its own en-suite bathroom, offering maximum comfort and privacy. The ground floor boasts a bright open-plan kitchen and living room, ideal for modern living and entertaining, along with a convenient guest WC. From the ground floor, there is direct access to a private garden and a beautiful swimming pool, creating a peaceful oasis for relaxation and social gatherings. The basement level accommodates two master bedrooms with abundant natural light through cour anglaise windows, as well as additional restful spaces. The first floor houses two more large master bedrooms, completing the layout of the residence. The maisonette also includes an energy-efficient fireplace to keep the home warm during cooler months, and is equipped with a solar water heater and heat pump system for year-round energy efficiency. Additional features include a private underground parking space, a dedicated storage room, a reinforced security door, awnings for shade, and pre-installed alarm system for complete peace of mind. Perfectly located close to shops and public transportation, this maisonette combines urban convenience with tranquil living. With an energy class A+ rating, it offers sustainable design without compromising style and comfort. A rare opportunity to own a spacious, modern, and fully equipped 190 sq.m. home in one of Glyfada’s most desirable neighborhoods.

Interested in this property?

Now through the website goldenhome.gr you can send a direct request for an appointment to show the property you are interested in. The service is completely free, fill in your details

Boiler : Yes, Triple energy
WC : Big
WC (number) : 1
Drainage : Sewer
Elevator : Yes
Floors : Oak
Satellite Antena : Yes
Electrical devices : Some
Solar heater : Yes
CCTV : Yes
Living room : Big, Single with dinning room, Bright, Modern, With hidden lighting
Pets acceptable : Yes
Air conditioning : Yes
Kitchen : With island, Bright, Modern
Kitchen (number) : 1
Bathrooms : With luxury sanitary ware
Bathrooms (number) : 3
Security door : Yes
Sitting room : Big
Stairs : Interior
Fireplace : Yes, Energy
Type Power : Three phase
Rooms : 3
Bedrooms Master with bathroom : Big
Bedrooms Master with Bathroom (num : 3
Double bedrooms (number) : 4
Natural Gas : ---
Playroom : Big, Bright
Terraces : Big, With beautiful view
Property area : 610
External appearance : Excellent
Noise : Quiet
Garden : Yes, Proprietary
Balconies : In the bedrooms, In the living room with view, In the kitchen
Surrounding area : Close to market, Quiet area, Close to public transports
Swimming pool : Yes, Proprietary
Tents : Yes
Storehouse : Yes
No. Floors : 4
Number of apartments : 6
Zone : Residential zone
View : Garden
Positions Parking (number) : 2
Position : Facade
Suitable for Vacation House : No
Suitable for Business use : No
Suitable for Students : No
Property status : Under construction
Hired : No
Quality construction : Excellent construction
Quality area : Excellent
Orientation : Eastern
Transportation : Bus, Tram
Alarm : Yes, Preinstallation
Type Parking : Close

Loan Calculation

Loan Amount *Minimum loan amount 10.000€ Floating Interest Rate: Euribor 3M (indicatively 2%) + spread (from 1.75%) + contribution L.128/75 (0.12%) Fixed Interest Rate: from 2.8% + contribution L.128/75 (0.12%)
Loan Interest
Loan Repayment Period

Example: Loan of €100,000, total duration 30 years. For the first three years, final interest rate 2.92% and for the remaining 27 years, final interest rate 4%. Indicative installment for the first three years ~€420 and for the remaining 27 years ~€500

Indicative Installment Amount

Interest Amount:
*The final interest rate is determined based on the mortgage loan program (floating, hybrid, fixed) and the borrower's profile.

Looking for the perfect home? Get the financing you need! Click the button below to register your interest in a mortgage loan.

CALL US