NEA SMYRNI - KENTRO
Property Code: 469063
4500
21.428571428571 € / m2
Modify Date: 31/03/25
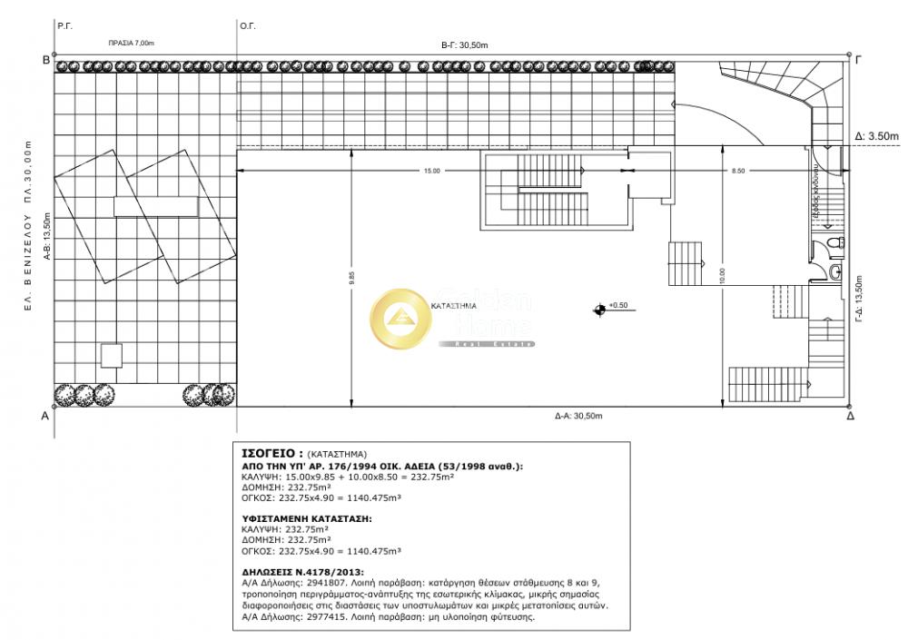
For rent in the CENTER OF NEA SMYRNΙ, ground floor commercial space, 209 sq.m., built in 1994, renovated, storefront, through and through, bright, with air conditioning, an elevator, and a bathroom. Located in a very central spot, with space for a large sign on the facade. Next to a tram stop, 700 meters from the central square of New Smyrna.
Now through the website goldenhome.gr you can send a direct request for an appointment to show the property you are interested in. The service is completely free, fill in your details
| Elevator : | Yes |
| Double glazing : | No |
| loft : | No |
| loft Sqm : | 0 |
| Previous use : | Seminary |
| Fire detection : | Yes |
| Fire extinguishment : | Yes |
| Loading and unloading ramps : | 0 |
| Alarm : | Preinstallation |
| Type Power : | Three phase |
| Natural Gas : | Yes, Preinstallation |
| Heating : | Individual, Central air-condition system |
| Beneficial Height : | 0 |
| Floor : | Marble |
| Area configuration : | single space, Big halls |
| Storehouse (s.m.) : | 0 |
| Equipment : | Ventilation, Cooling - Heating, Fire safety system, Alarm system |
| Property status : | Renovated |
| Label Capability : | Yes |
| Commerciality : | High |
| Position : | Double frontage, Facade, Densely populated area |
| Lawn : | Yes |
| Lawn : | 10 |
| Access : | Immediate, Bus, Tram |
| Display Window (cm) : | 10 |
| Parking Type : | Open |
| Security building : | No |
| Use Area : | Residential, Charitable organizations, Seminary, Commercial, Inside the zoning area |
| Property Type : | Store, Office |
| Shared bills : | 0 |
| Plans - Contracts : | Layouts |