Sale, Residential, Floor Maisonette

AGIA SOFIA - MANIATIKA

Property Code: 473411

Rooms 4
Bathrooms 1
Floor 6 (6th)
Parking 1
Area 141 m2
Construction 2025

480000

or by acquiring a mortgage €/ΜONTH

3404.2553191489 € / m2

Modify Date: 27/01/26

Description

Spacious 4-bedroom maisonette on the sixth and seventh floors features large, bright spaces, a modern kitchen, sliding wardrobes, luxurious bathrooms and large balconies, ideal for moments of relaxation. Smoke or fire detectors in all main areas, alarm ensure safety. Parking space, with independent installation of an electric car fast charger and storage room with power supply from the apartment. A second parking space is available for an additional fee. The interior design has been done with attention to detail, offering maximum functionality and aesthetics and offering comfort and privacy. The foundation with general bedding (Radier) offers excellent stability and durability, ensuring high levels of strength and safety of the building in cases of seismic vibrations. The apartment building is built according to the most modern construction and energy efficiency class A specifications. The 10 cm thick thermal facade offers excellent insulation, ensuring a constant temperature inside the apartments throughout the year, while at the same time, in combination with energy-efficient frames with a thermal switch and the individual heat pump and solar hybrid technology, it significantly reduces energy consumption, offering you complete heating and cooling autonomy throughout the house. The apartment building is located in one of the most up-and-coming areas of Piraeus, just 500 meters from the Maniatika metro station. It combines quick access to the center of Piraeus with the tranquility of the local neighborhood. Within close proximity you will find schools, the sports stadium (Themistoklio), central market, restaurants and parks, making your everyday life easier and more enjoyable.

Interested in this property?

Now through the website goldenhome.gr you can send a direct request for an appointment to show the property you are interested in. The service is completely free, fill in your details

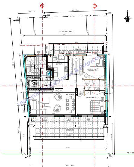
Floor area 6 : 106
Area condition : Newly built, Under construction
Level Use : Living room, Dining room, Sitting, Kitchen, Master bedrooms, Double bedrooms, Bath, Office, Safety door, Floor apartment
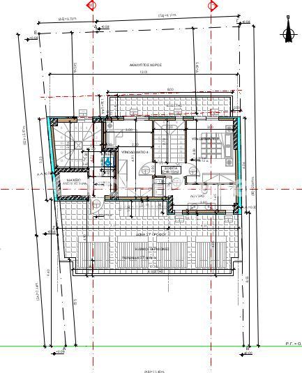
Floor area 7 : 47
Area condition : Newly built, Under construction
Level Use : Master bedrooms, Double bedrooms, Bath, Safety door, Room
WC : Big, With shower
WC (number) 7 : 1
Renovation : Complete, External painting, Internal painting, Kitchen closets, Kitchen tiles, Bath tiles, Tents, Double glazed windows, Safety door, External thermal insulation
Elevator : Big, In all the floors
Floors : Tile
Solar heater : Yes
Heating : Individual
CCTV : Yes
Living room : Big, Bright, Modern
Pets acceptable : Yes
Air conditioning : Yes
Kitchen : Bright, Modern, With balcony
Kitchen (number) 7 : 1
Bathrooms : Big, With window, With shower, Bright
Security door : Yes
Sitting room : Big, Bright, Modern
Stairs : Interior
Dining room : Bright
Type Power : Three phase
Terraces : Big, Perimeter, In the living room
External appearance : Excellent, Modern
Noise : Quiet
Balconies : In the bedrooms, In the living room, In the kitchen, Big
Surrounding area : Very green, Close to school, Quiet area, Close to public transports
Tents : Yes
Storehouse : Yes, Big
Storehouse (s.m.) : 7.99
No. Floors : 7
Number of apartments : 7
Zone : Residential zone
View : Mountain, Unlimited
Positions Parking (number) : 2
Position : Double frontage, Facade
Suitable for Business use : Yes
Suitable for Students : Yes
Property status : Newly built, Under construction
Hired : No
Quality construction : Excellent construction, Luxury construction, Modern construction
Quality area : Excellent
Penthouse : Yes
Transportation : Bus, Metro
Alarm : Yes
Type Parking : Pilotis, Basement

Loan Calculation

Loan Amount *Minimum loan amount 10.000€ Floating Interest Rate: Euribor 3M (indicatively 2%) + spread (from 1.75%) + contribution L.128/75 (0.12%) Fixed Interest Rate: from 2.8% + contribution L.128/75 (0.12%)
Loan Interest
Loan Repayment Period

Example: Loan of €100,000, total duration 30 years. For the first three years, final interest rate 2.92% and for the remaining 27 years, final interest rate 4%. Indicative installment for the first three years ~€420 and for the remaining 27 years ~€500

Indicative Installment Amount

Interest Amount:
*The final interest rate is determined based on the mortgage loan program (floating, hybrid, fixed) and the borrower's profile.

Looking for the perfect home? Get the financing you need! Click the button below to register your interest in a mortgage loan.

CALL US