Sale, Residential, Floor Maisonette

GAZI - METAXOURGIO - VOTANIKOS - GAZI

Property Code: 488085

Rooms 1
Bathrooms 1
Floor 1 (1st)
Parking 1
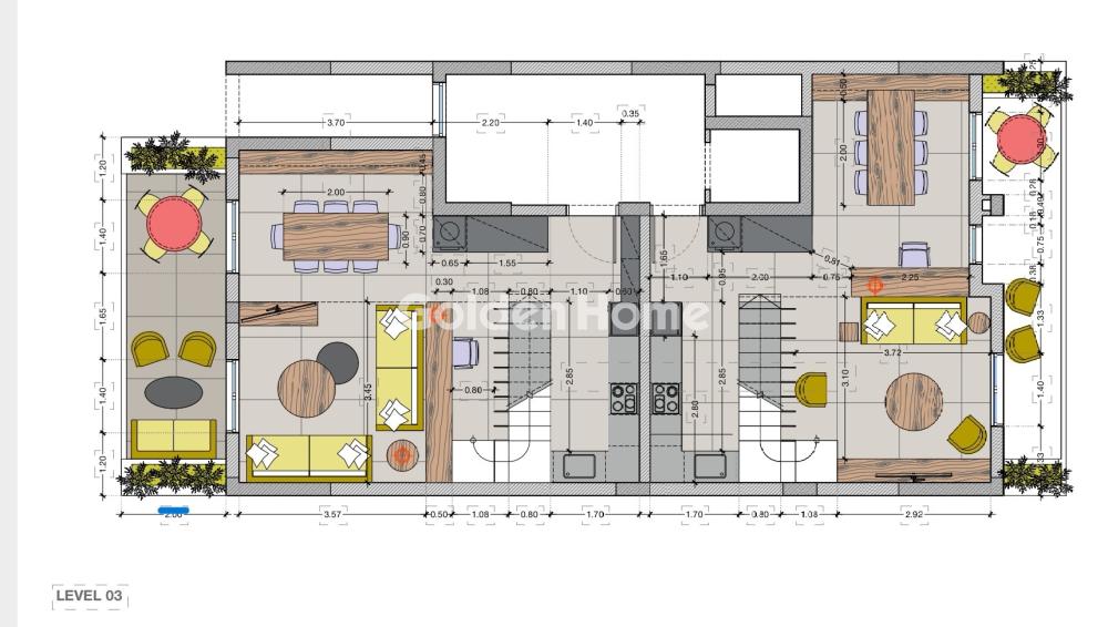
Area 70 m2
Construction 2025

300000

or by acquiring a mortgage €/ΜONTH

4285.7142857143 € / m2

Modify Date: 16/03/26

Description

Loft for sale on the 1st and 2nd floors (two levels) in the Gazi area, with a total area of 70 sq.m. It consists of one luxurious bedroom on the upper floor with a bathroom. It also features a bright and modern dining area that is integrated with the living room and kitchen. The property is currently under construction and is expected to be completed in 2026. Located just 100 meters from Kerameikos metro station and with easy access to bus stops which makes the loft ideal for investment too. The loft is situated in a quiet neighborhood despite being only a few meters away from the market.

Interested in this property?

Now through the website goldenhome.gr you can send a direct request for an appointment to show the property you are interested in. The service is completely free, fill in your details

Drainage : Sewer
Elevator : Yes
Satellite Antena : Yes
Solar heater : Yes
Heating : Air condition
CCTV : Yes
Living room : Big, Single with dinning room, Bright, Modern
Pets acceptable : Yes
Air conditioning : Yes
Kitchen : Independent, Modern
Bathrooms : Big, With shower
Bathrooms (number) : 2
Security door : Yes
Sitting room : Big, Single with dinning room, Bright, Modern
Stairs : Interior
Double bedrooms : Big, With big closets
Electrical devices : New, Fridge, Kitchen, Oven
Furnished : Yes
Dining room : Single with living room, Single with sitting room, Bright
Terraces : Big
Balconies : In the living room, Big
Surrounding area : Pedestrian street, Close to market, Quiet area
Noise : Quiet
External appearance : Excellent, Modern
Storehouse : Yes
Number of apartments : 6
Position : Facade
Suitable for Vacation House : No
Suitable for Business use : No
Suitable for Students : No
Property status : Newly built
Hired : No
Quality construction : Excellent construction, Luxury construction, Modern construction
Quality area : Good
Transportation : Bus, Metro
Alarm : Yes
Type Parking : Pilotis
Zone : Residential zone

Loan Calculation

Loan Amount *Minimum loan amount 10.000€ Floating Interest Rate: Euribor 3M (indicatively 2%) + spread (from 1.75%) + contribution L.128/75 (0.12%) Fixed Interest Rate: from 2.8% + contribution L.128/75 (0.12%)
Loan Interest
Loan Repayment Period

Example: Loan of €100,000, total duration 30 years. For the first three years, final interest rate 2.92% and for the remaining 27 years, final interest rate 4%. Indicative installment for the first three years ~€420 and for the remaining 27 years ~€500

Indicative Installment Amount

Interest Amount:
*The final interest rate is determined based on the mortgage loan program (floating, hybrid, fixed) and the borrower's profile.

Looking for the perfect home? Get the financing you need! Click the button below to register your interest in a mortgage loan.

CALL US