Sale, Residential, Independent Maisonette

THERMI - NEA REDESTOS

Property Code: 489967

Rooms 2
Bathrooms 1
Floor 0 (Ground Floor)
Parking 2
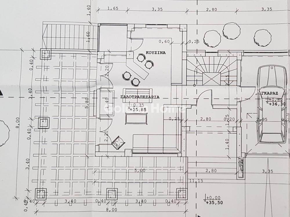
Area 200 m2
Construction 2025

480000

or by acquiring a mortgage €/ΜONTH

2400 € / m2

Modify Date: 12/09/25

Description

A luxuriously constructed house is for sale in Nea Radesto. The house will be built to German specifications, with an outer shell made of non-combustible materials, energy-wise (as far as this is permitted) independent of the PPC network, with a storage system for the energy produced for hot water, a natural flow and air exchange system, with the possibility of changing or reusing the materials, access to the electrical - hydraulic installation without the need for destructive interventions, fully insulated, with an integrated ventilation system in the window profiles, an energy fireplace-stove, electric underfloor heating and an electric vehicle charging system. Upon delivery, a complete file will be prepared with all the data for the materials used in the construction, which will correspond to the agreement and the technical description. The house corresponds to 1,250 sq.m. of land, which will be delimited with plants. The house has one closed parking space and one open or more… garden of 1250 sq.m. which can be used at the owner's discretion. It is ideal for a permanent or holiday home. It has easy access to Thessaloniki, the airport and many cosmopolitan beaches of Halkidiki. -Golden Home Real Estate - Thessaloniki Branch: Ionos Dragoumi 4 & Tsimiski, Thessaloniki Email: thessaloniki@goldenhome.gr Web: https://goldenhome.gr Phone: 231 4405.900

Interested in this property?

Now through the website goldenhome.gr you can send a direct request for an appointment to show the property you are interested in. The service is completely free, fill in your details

Boiler : Yes
Drainage : Cesspit
Elevator : No
Floors : Tile
Computer network : ---
Satellite Antena : ---
Heating : Underfloor
Living room : Big, Bright
Pets acceptable : Yes
Air conditioning : Yes
Kitchen : Bright, Modern
Kitchen (number) : 1
Bathrooms : Big, Bright
Security door : Yes
Sitting room : Big, Bright, Modern
Stairs : Interior
Fireplace : Yes, Energy
Dining room : Bright
Bedrooms Master with Bathroom (num : 0
Double bedrooms : Big
Bedrooms children : Big
Natural Gas : ---
WC (number) : 0
Solar heater : Preinstallation
Bathrooms (number) : 1
Guestroom : ---
Rooms : 2
Garden : Yes, Proprietary
Garden (s.m.) : 1250
Terraces : With beautiful view
Property area : 1250
External appearance : Excellent
Noise : Quiet
Balconies : With beautiful view
Balconies (s.m.) : 10
Surrounding area : Big plot, Quiet area
Swimming pool (s.m.) : 0
Storehouse : Yes
No. Floors : 2
Zone : Outside the zoning area
View : Unlimited
Positions Parking (number) : 1
Position : Facade
Suitable for Vacation House : Yes
Suitable for Business use : No
Suitable for Students : No
Property status : Under construction
Hired : No
Quality construction : Modern construction
Quality area : Good, Very quiet
Transportation : Bus
Type Parking : Open, Close
Storehouse (s.m.) : 40
Alarm : Preinstallation
Private Terrace (s.m.) : 0

Loan Calculation

Loan Amount *Minimum loan amount 10.000€ Floating Interest Rate: Euribor 3M (indicatively 2%) + spread (from 1.75%) + contribution L.128/75 (0.12%) Fixed Interest Rate: from 2.8% + contribution L.128/75 (0.12%)
Loan Interest
Loan Repayment Period

Example: Loan of €100,000, total duration 30 years. For the first three years, final interest rate 2.92% and for the remaining 27 years, final interest rate 4%. Indicative installment for the first three years ~€420 and for the remaining 27 years ~€500

Indicative Installment Amount

Interest Amount:
*The final interest rate is determined based on the mortgage loan program (floating, hybrid, fixed) and the borrower's profile.

Looking for the perfect home? Get the financing you need! Click the button below to register your interest in a mortgage loan.

CALL US