Sale, Residential, Independent Maisonette

THERMI - CENTER

Property Code: 505206

Rooms 3
Bathrooms 2
Floor 0 (Ground Floor)
Parking 2
Area 235 m2
Construction 2026

560000

or by acquiring a mortgage €/ΜONTH

2382.9787234043 € / m2

Modify Date: 17/04/26

Description

FOR SALE: Detached maisonette of 235 sq.m. in the extension area of Thermi, just 3 minutes from the central square, on a 225 sq.m. plot. The property is developed over four levels and consists of a 60 sq.m. basement with independent entrance and natural light, a 60 sq.m. ground floor with living room, kitchen and WC, a 70 sq.m. first floor with 2 bedrooms, an office and a bathroom, and a 45 sq.m. attic ideal for a master bedroom. It features underfloor heating, energy-efficient window frames (Synco), an energy-efficient fireplace (Lavakamin), solar water heater, and a Smart Home system (Level A) with access control and video intercom. There is pre-installation for an elevator (2 persons, 4 stops) and for a jacuzzi in the attic, while the buyer has the option to customize the internal layout according to their needs. The area offers well-developed infrastructure, with schools, supermarkets, shops, cafés, and restaurants nearby. Estimated completion: December 2026.

Interested in this property?

Now through the website goldenhome.gr you can send a direct request for an appointment to show the property you are interested in. The service is completely free, fill in your details

WC : Big, With shower
WC (number) : 1
Elevator : Interior, In all the floors
Office : Bright, Quiet , With balcony, Bedroom capability
Floors : Tile
Computer network : Yes
Satellite Antena : Yes
Solar heater : Yes
Heating : Individual, Air condition
CCTV : Yes
Pets acceptable : Yes
Burner : Autonomous gas burner
Air conditioning : Yes
Kitchen : Single with dinning room, Bright, Modern, Single with living room
Kitchen (number) : 1
Bathrooms : Big, With window, With luxury sanitary ware, Bright
Bathrooms (number) : 2
Security door : Yes
Sitting room : Big, Single with dinning room, Bright, Modern, Single with kitchen
Stairs : Interior, Corner
Fireplace : Yes, Energy
Phone center : Preinstallation
Dining room : Single with living room, Bright, With veranda, With beautiful view, Single with kitchen
Type Power : Three phase
Rooms : 3
Bedrooms Master with bathroom : Big, With balcony with view, With big closets, With jaccuzi, With dressing room
Bedrooms Master with Bathroom (num : 1
Natural Gas : Yes
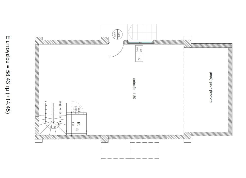
Floor area -1 : 60
Area condition : Newly built, Unfinished
Level Use : Storage
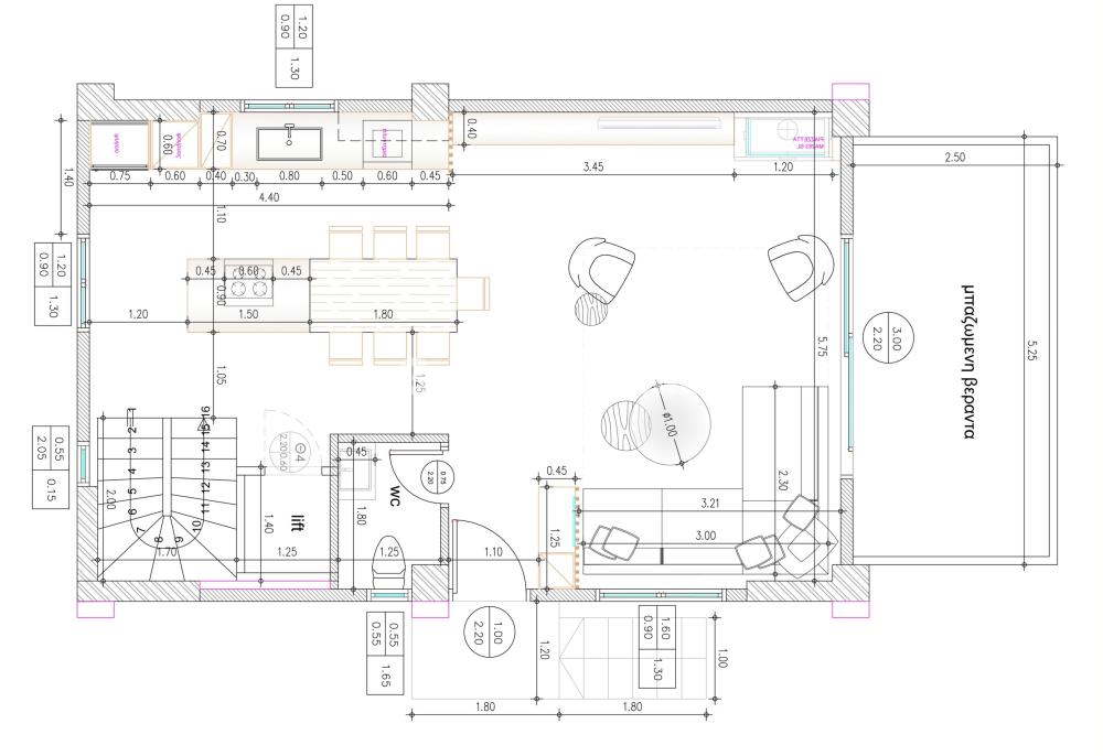
Floor area 0 : 60
Area condition : Newly built, Unfinished
Level Use : Living room, Dining room, Kitchen, Safety door
Floor area 1 : 70
Area condition : Newly built, Unfinished
Level Use : Double bedrooms, Small bedrooms, Bath, Office
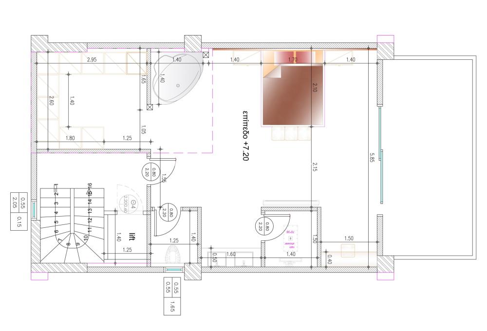
Floor area 2 : 45
Area condition : Newly built, Unfinished
Level Use : Master bedrooms, Bath
Terraces : Big, In the living room
Property area : 225
External appearance : Excellent, Good, Modern, Beautiful entrance
Noise : Quiet
Garden : Proprietary
Balconies : In the bedrooms, Big, With beautiful view
Surrounding area : Very green, Pedestrian street, Close to school, Close to market, Big plot, Quiet area, Close to public transports
Storehouse : Yes, Big, In the house
No. Floors : 2
Zone : Residential zone
View : Sea, Mountain
Positions Parking (number) : 2
Position : Corner, Double frontage
Property status : Newly built, Unfinished
Hired : No
Quality construction : Excellent construction, Luxury construction
Quality area : Excellent, Good, Very quiet, Very green, Luxury residences
Transportation : Bus
Alarm : Yes, With cameras
Type Parking : Open

Loan Calculation

Loan Amount *Minimum loan amount 10.000€ Floating Interest Rate: Euribor 3M (indicatively 2%) + spread (from 1.75%) + contribution L.128/75 (0.12%) Fixed Interest Rate: from 2.8% + contribution L.128/75 (0.12%)
Loan Interest
Loan Repayment Period

Example: Loan of €100,000, total duration 30 years. For the first three years, final interest rate 2.92% and for the remaining 27 years, final interest rate 4%. Indicative installment for the first three years ~€420 and for the remaining 27 years ~€500

Indicative Installment Amount

Interest Amount:
*The final interest rate is determined based on the mortgage loan program (floating, hybrid, fixed) and the borrower's profile.

Looking for the perfect home? Get the financing you need! Click the button below to register your interest in a mortgage loan.

CALL US