Sale, Residential, Floor Maisonette

PIRAEUS CENTER - CENTER

Property Code: 513335

Rooms 3
Bathrooms 1
Floor 6 (6th)
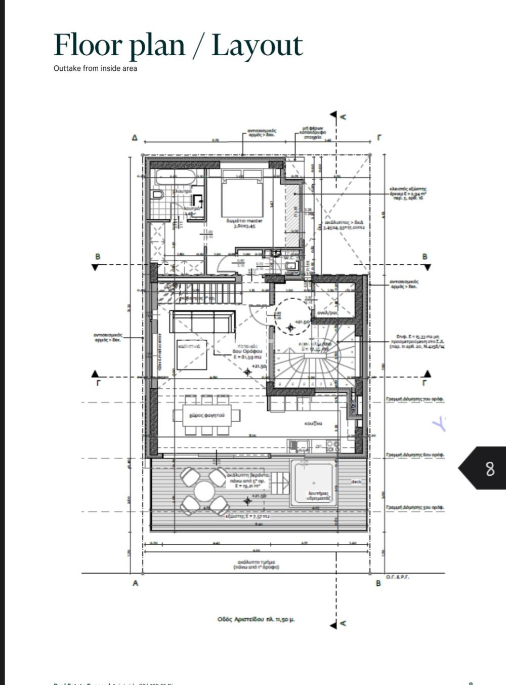
Area 137 m2
Construction 2026

820000

or by acquiring a mortgage €/ΜONTH

5985.401459854 € / m2

Modify Date: 06/03/26

Interested in this property?

Now through the website goldenhome.gr you can send a direct request for an appointment to show the property you are interested in. The service is completely free, fill in your details

Boiler : Yes, Double energy
Elevator : External , In all the floors
WC : With window, Small
WC (number) : 1
Floors : Tile
Satellite Antena : ---
Solar heater : Double energy
Heating : Fan Coil
CCTV : Yes
Living room : Big, Single with dinning room, Bright, Modern
Pets acceptable : No
Kitchen : Single with dinning room, Bright, Modern
Kitchen (number) : 1
Bathrooms : Big, With window, With luxury sanitary ware, Bright
Bathrooms (number) : 1
Security door : Yes
Stairs : External
Type Power : Single phase
Rooms : 3
Bedrooms Master with bathroom : Big, With big closets
Bedrooms Master with Bathroom (num : 1
Double bedrooms : Big
Double bedrooms (number) : 2
Noise : Quiet
Property area : 1
External appearance : Excellent, Beautiful entrance
Surrounding area : Close to the sea, Close to market, Close to public transports
Balconies : In the bedrooms, In the living room
Balconies (s.m.) : 1
Zone : Residential zone
No. Floors : 7
Number of apartments : 6
View : Sea
Position : Double frontage, Facade
Suitable for Vacation House : No
Suitable for Business use : No
Suitable for Students : No
Property status : Newly built
Hired : No
Quality construction : Excellent construction, Luxury construction
Orientation : Southeast
Penthouse : Yes
Transportation : Bus, Metro, Suburban, Tram, Electric
Alarm : Yes

Loan Calculation

Loan Amount *Minimum loan amount 10.000€ Floating Interest Rate: Euribor 3M (indicatively 2%) + spread (from 1.75%) + contribution L.128/75 (0.12%) Fixed Interest Rate: from 2.8% + contribution L.128/75 (0.12%)
Loan Interest
Loan Repayment Period

Example: Loan of €100,000, total duration 30 years. For the first three years, final interest rate 2.92% and for the remaining 27 years, final interest rate 4%. Indicative installment for the first three years ~€420 and for the remaining 27 years ~€500

Indicative Installment Amount

Interest Amount:
*The final interest rate is determined based on the mortgage loan program (floating, hybrid, fixed) and the borrower's profile.

Looking for the perfect home? Get the financing you need! Click the button below to register your interest in a mortgage loan.

CALL US