Πώληση, Κατοικία, Διαμέρισμα

ΘΕΡΜΗ - Κέντρο

Κώδ. Ακινήτου: 490009

Δωμάτια 2
Μπάνια 1
Όροφος 1 (1ος)
Θέση Στάθμευσης 2
Εμβαδόν 80 m2
Κατασκευή 2026

210000

ή με χορήγηση δανείου €/ΜΗΝΑ

2625 € / m2

Ημ. Ενημέρωσης: 16/09/25

Περιγραφή

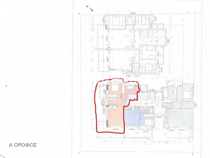
Διαμέρισμα A 1.1. προς Πώληση – 80 τ.μ. σε Νεόδμητο Συγκρότημα στη Θέρμη, μία από τις ταχύτερα αναπτυσσόμενες περιοχές της Θεσσαλονίκης Λεπτομέρειες Ακινήτου Εμβαδόν (μικτό): 80 τ.μ. Εμβαδόν (καθαρό): 57 τ.μ. Διαμπερές / Φωτεινό Σαλόνι με κουζίνα Υπνοδωμάτια: 2 Μπάνιο (βοηθητικο W.C. ) : 1 Μπαλκόνια: 3 Αποθήκη (τμ) 4 Ενδοδαπέδια θέρμανση Υπόγεια θέση στάθμευσης: 2 Προεγκατάσταση συναγερμού (γραμμή σειρήνας, πληκτρολογίου) Το δίκτυο της κεντρικής κεραίας Τ.V. καταλήγει στο δώμα Εκτιμώμενη Ολοκλήρωση: ΣΕΠΤΕΜΒΡΙΟΣ 2026 Μια εξαιρετική επενδυτική ευκαιρία – ιδανική και για επαγγελματική χρήση! Για περισσότερες πληροφορίες ή για να προγραμματίσετε μια επίσκεψη, επικοινωνήστε μαζί μας: Golden Home Real Estate Ιωνος Δραγούμη 4, 54623, Θεσσαλονίκη Email: thessaloniki@goldenhome.gr Web: https://goldenhome.gr Τηλέφωνο: +30 2314 405900 Κινητό: +30 6947 645562

Ενδιαφέρεστε για αυτό το ακίνητο;

Τώρα μέσω της ιστοσελίδας goldenhome.gr μπορείτε να στείλετε απευθείας αίτημα για ραντεβού υπόδειξης του ακινήτου που σας ενδιαφέρει. Η υπηρεσία είναι εντελώς δωρεάν, συμπληρώστε τα στοιχεία σας

Ανακαίνιση : Όχι
Ασανσέρ : Μεγάλο, Ναι
Δάπεδα : Πλακάκι
Δίκτυο Η/Υ : Ναι
Δορυφορική Κεραία : Ναι
Δωμάτιο Υπηρεσίας : Με Μπαλκόνι
Ηλιακός : Ναι
Θέρμανση : Αυτόνομη, Κλιματιστικά
Θυροτηλεόραση : Ναι
Κατοικίδια Δεκτά : Ναι
Κλιματισμός : Ναι
Κουζίνα : Ενιαία με τραπεζαρία, Φωτεινή, Μοντέρνα, Ενιαία Με Σαλόνι
Μπάνια : Μεγάλο, Με Παράθυρο, Φωτεινό
Μπάνια (αριθμός) : 1
Πόρτα Ασφαλείας : Ναι
Σαλόνι : Μεγάλο, Ενιαίο Με Τραπεζαρία, Φωτεινό, Μοντέρνο, Ενιαίο Με Κουζίνα
Τζάκι : Όχι
Τηλεφ. Κέντρο : Ναι
Τραπεζαρία : Ενιαία Με Σαλόνι, Φωτεινή, Με Ωραία Θέα, Ενιαία Με Κουζίνα
Φυσικό Αέριο : Ναι
Θόρυβος : Ήσυχο
Μπαλκόνια : Στα Υ/Δ, Στο Σαλόνι, Στο Σαλόνι με Θέα, Μεγάλες, Με Ωραία Θέα
Περιβάλλοντας Χώρος : Πολύ πράσινο, Πεζόδρομος, Κοντά στην Αγορά, Ήσυχη περιοχή
Πισίνα : Όχι
Αποθήκη : Ναι, Μεγάλη
Αποθήκη (τμ) : 4
Αρ. Ορόφων : 2
Αρ.Διαμερισμάτων : 6
Ενεργειακή Κλάση : Α
Θέα : Βουνό, Δάσος
Θέσεις Parking (αριθμός) : 2
Θέση : Φωτεινό, Γωνιακό, Διαμπερές, Προσόψεως
Κατάσταση Ακινήτου : Νεόδμητο, Υπό Κατασκευή
Μισθωμένο : Όχι
Ποιότητα Κατασκευής : Άριστη κατασκευή, Πολυτελής κατασκευή, Σύγχρονη κατασκευή
Ποιότητα Περιοχής : Άριστη, Καλή, Πολύ ήσυχη, Πολύ πράσινη, Πολυτελείς κατοικίες
Ρετιρέ : Όχι
Συγκοινωνίες : Λεωφορεία
Συναγερμός : Ναι
Τύπος Parking : Ανοικτό, Κλειστό, Πιλοτής, Υπόγειο, Με Ατομική Γκαραζόπορτα

Υπολογιστής Δανείου

Ποσό Δανείου *Ελάχιστο ποσό δανείου 10.000€ Κυμαινόμενο Επιτόκιο: Euribor 3M (ενδεικτικά 2%) + spread (από 1,75%)+ εισφορά Ν.128/75 (0,12%) Σταθερό Επιτόκιο: από 2,8% + εισφορά Ν.128/75 (0,12%)
Επιτόκιο
Έτη Αποπληρωμής

Παράδειγμα: Δάνειο 100.000€, συνολική διάρκεια 30 έτη. Για τα τρία πρώτα έτη τελικό επιτόκιο 2,92% και τα υπόλοιπα 27 έτη τελικό επιτόκιο 4%. Ενδεικτική δόση για τα τρία πρώτα χρόνια ~420€ και για τα υπόλοιπα 27 έτη ~500€

Ποσό Ενδεικτικής Δόσης

Τελικό Επιτόκιο:
*Tο τελικό επιτόκιο διαμορφώνεται βάσει του προγράμματος του στεγαστικού δανείου (κυμαινόμενο, υβριδικό, σταθερό) και του προφίλ του δανειολήπτη.

Ψάχνετε για το τέλειο σπίτι; Λάβετε τη χρηματοδότηση που χρειάζεστε! Κάντε κλικ στο κουμπί παρακάτω για να δηλώσετε το ενδιαφέρον σας για ένα στεγαστικό δάνειο.

ΤΗΛΕΦΩΝΟ