Πώληση, Κατοικία, Διαμέρισμα

ΘΕΡΜΗ - Κέντρο

Κώδ. Ακινήτου: 491996

Δωμάτια 3
Μπάνια 1
Όροφος 2 (2ος)
Θέση Στάθμευσης 1
Εμβαδόν 129 m2
Κατασκευή 2026

420000

ή με χορήγηση δανείου €/ΜΗΝΑ

3255.8139534884 € / m2

Ημ. Ενημέρωσης: 02/03/26

Περιγραφή

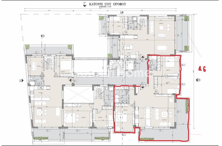
Διαμέρισμα Δ6 προς Πώληση – 129 τ.μ. (113 τ.μ. καθαρά) Με ιδιαίτερο σχεδιασμό, σε νεόδμητο συγκρότημα στη Θέρμη, μία από τις ταχύτερα αναπτυσσόμενες περιοχές της Θεσσαλονίκης. Ευρύχωρο σαλόνι με μεγάλο μπαλκόνι με εκπληκτική θέα. Κουφώματα αλουμινίου με θερμοδιακοπή και διπλά τζάμια. Ηχομόνωση και θερμομόνωση σε όλους τους χώρους. Τρία ευρύχωρα υπνοδωμάτια με δομημένη καλωδίωση CAT6 για το διαδίκτυο. Προ εγκατάσταση οπτικής ίνας (FTTH). Δυνατότητα σύνδεσης με σύστημα Έξυπνου Σπιτιού. Ελεγχόμενη πρόσβαση. Δάπεδα υψηλής ποιότητας με αυτόνομη ενδοδαπέδιου θέρμανση μέσω κοινής αντλίας θερμότητας σε όλους τους χώρους. Προ εγκατάσταση για κλιματισμό. Ξεχωριστός χώρος πλυντηρίου/αποθήκευσης για πλυντήριο και στεγνωτήριο. Φωτισμός LED σε όλο το ακίνητο. Αυτόνομος αποθηκευτικός χώρος και υπόγεια θέση στάθμευσης. Προ εγκατάσταση ανεξάρτητης παροχής ρεύματος για φόρτιση ηλεκτρικού οχήματος στην ιδιωτική θέση στάθμευσης. Το κτίριο έχει σχεδιαστεί με γνώμονα τη μέγιστη ενεργειακή απόδοση και έχει κατασκευαστεί με υλικά υψηλής τεχνολογίας και εξαιρετικής ποιότητας, εξοπλισμένο με τον πιο σύγχρονο εξοπλισμό. Αναδιαμορφωμένοι κοινόχρηστοι χώροι γύρω από το κτήριο. Εκτιμώμενη Ολοκλήρωση: Φεβρουάριος 2026 Μια εξαιρετική επενδυτική ευκαιρία – ιδανική και για επαγγελματική χρήση! Για περισσότερες πληροφορίες ή για να προγραμματίσετε μια επίσκεψη, επικοινωνήστε μαζί μας:

Ενδιαφέρεστε για αυτό το ακίνητο;

Τώρα μέσω της ιστοσελίδας goldenhome.gr μπορείτε να στείλετε απευθείας αίτημα για ραντεβού υπόδειξης του ακινήτου που σας ενδιαφέρει. Η υπηρεσία είναι εντελώς δωρεάν, συμπληρώστε τα στοιχεία σας

WC : Μεγάλο, Με Ντουζιέρα
Ανακαίνιση : Όχι
Ασανσέρ : Εσωτερικό, Μεγάλο, Ναι
Δάπεδα : Πλακάκι
Δίκτυο Η/Υ : Ναι
Δορυφορική Κεραία : Ναι
Επιπλωμένο : Όχι
Θέρμανση : Αυτόνομη με θερμιδομέτρηση, Κλιματιστικά
Θυροτηλεόραση : Ναι
Καθιστικό : Μεγάλο, Ενιαίο Με Τραπεζαρία, Φωτεινό, Μοντέρνο
Κατοικίδια Δεκτά : Ναι
Καυστήρας : Φυσικού Αερίου
Κλιματισμός : Ναι, Προεγκατάσταση
Κουζίνα : Ενιαία με τραπεζαρία, Φωτεινή, Μοντέρνα, Με Μπαλκόνι, Ενιαία Με Σαλόνι
Κουζίνα (αριθμός) : 1
Πόρτα Ασφαλείας : Ναι, Από το Υπόγειο Πάρκιν
Σαλόνι : Μεγάλο, Ενιαίο Με Τραπεζαρία, Φωτεινό, Μοντέρνο, Ενιαίο Με Κουζίνα
Τζάκι : Ναι, Ενεργειακό
Τηλεφ. Κέντρο : Ναι
Τραπεζαρία : Ενιαία Με Σαλόνι, Φωτεινή, Με Ωραία Θέα, Ενιαία Με Κουζίνα
Φυσικό Αέριο : Ναι
Μπάνια : Μεγάλο, Με Ντουζιέρα, Με Είδη Υγιεινής πολυτελείας, Φωτεινό
Μπάνια (αριθμός) : 1
Τύπος Ρεύματος : Τριφασικό
Υ/Δ : 3
Ηλιακός : Προεγκατάσταση
Εξωτερική Εμφάνιση : Άριστη, Καλή, Μοντέρνο, Ωραίος κήπος, Ωραία είσοδος
Θόρυβος : Ήσυχο
Μπαλκόνια : Στα Υ/Δ, Μεγάλες, Με Ωραία Θέα
Περιβάλλοντας Χώρος : Πολύ πράσινο, Πεζόδρομος, Κοντά σε σχολείο, Κοντά στην Αγορά, Με μεγάλο κήπο, Ήσυχη περιοχή
Πισίνα : Όχι
Βεράντες : Μεγάλες, Με Ωραία Θέα, Στο Σαλόνι
Βεράντες (τμ) : 15
Αποθήκη : Ναι, Μεγάλη
Αποθήκη (τμ) : 6
Αρ. Ορόφων : 2
Αρ.Διαμερισμάτων : 7
Ενεργειακή Κλάση : Α+
Ζώνη : Γενικής Κατοικίας
Θέα : Θάλασσα, Βουνό, Δάσος, Κήπος
Θέσεις Parking (αριθμός) : 1
Θέση : Φωτεινό, Γωνιακό, Διαμπερές
Κατάσταση Ακινήτου : Νεόδμητο, Υπό Κατασκευή
Μισθωμένο : Όχι
Ποιότητα Κατασκευής : Άριστη κατασκευή, Πολυτελής κατασκευή, Σύγχρονη κατασκευή
Ποιότητα Περιοχής : Άριστη, Καλή, Πολύ ήσυχη, Πολύ πράσινη, Πολυτελείς κατοικίες
Ρετιρέ : Όχι
Συγκοινωνίες : Λεωφορεία
Συναγερμός : Ναι, Προεγκατάσταση, Με Κάμερες
Τύπος Parking : Πιλοτής, Υπόγειο

Υπολογιστής Δανείου

Ποσό Δανείου *Ελάχιστο ποσό δανείου 10.000€ Κυμαινόμενο Επιτόκιο: Euribor 3M (ενδεικτικά 2%) + spread (από 1,75%)+ εισφορά Ν.128/75 (0,12%) Σταθερό Επιτόκιο: από 2,8% + εισφορά Ν.128/75 (0,12%)
Επιτόκιο
Έτη Αποπληρωμής

Παράδειγμα: Δάνειο 100.000€, συνολική διάρκεια 30 έτη. Για τα τρία πρώτα έτη τελικό επιτόκιο 2,92% και τα υπόλοιπα 27 έτη τελικό επιτόκιο 4%. Ενδεικτική δόση για τα τρία πρώτα χρόνια ~420€ και για τα υπόλοιπα 27 έτη ~500€

Ποσό Ενδεικτικής Δόσης

Τελικό Επιτόκιο:
*Tο τελικό επιτόκιο διαμορφώνεται βάσει του προγράμματος του στεγαστικού δανείου (κυμαινόμενο, υβριδικό, σταθερό) και του προφίλ του δανειολήπτη.

Ψάχνετε για το τέλειο σπίτι; Λάβετε τη χρηματοδότηση που χρειάζεστε! Κάντε κλικ στο κουμπί παρακάτω για να δηλώσετε το ενδιαφέρον σας για ένα στεγαστικό δάνειο.

ΤΗΛΕΦΩΝΟ