Ζήτα περισσότερες πληροφορίες

ΣΤΕΙΛΕ ΜΗΝΥΜΑ

Πώληση, Κατοικία, Διαμέρισμα

ΑΓΙΟΣ ΔΗΜΗΤΡΙΟΣ - Τσουκάλι

Κώδ. Ακινήτου: 517704

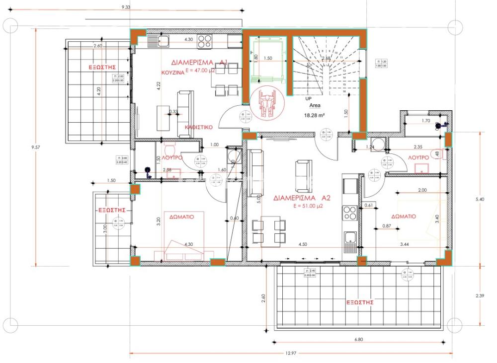
Δωμάτια 1
Μπάνια 1
Όροφος 1 (1ος)
Θέση Στάθμευσης 1
Εμβαδόν 51 m2
Κατασκευή 2026

200000

ή με χορήγηση δανείου €/ΜΗΝΑ

3921.568627451 € / m2

Ημ. Ενημέρωσης: 07/04/26

Περιγραφή

Διαμέρισμα προς πώληση στον Άγιο Δημήτριο, νεόδμητο υπό κατασκευή με παράδοση το 2027, συνολικής επιφάνειας 51 τ.μ., σε εξαιρετική τοποθεσία κοντά στο Μετρό. Πρόκειται για σύγχρονο και ιδιαίτερα φωτεινό διαμέρισμα με θέα θάλασσα, το οποίο διαθέτει δύο άνετα υπνοδωμάτια, ευρύχωρο σαλόνι με μοντέρνα κουζίνα, κομψό μπάνιο και μεγάλες βεράντες που προσφέρουν άνεση και ανοιχτό ορίζοντα. Η κατασκευή είναι υψηλών προδιαγραφών με σύγχρονο αρχιτεκτονικό σχεδιασμό, ενεργειακά αποδοτικά κουφώματα, ποιοτικά υλικά και λειτουργική διαρρύθμιση που καλύπτει πλήρως τις ανάγκες μιας σύγχρονης κατοικίας. Βρίσκεται σε αναπτυσσόμενη περιοχή με άμεση πρόσβαση σε Μετρό, αγορά, σχολεία και βασικούς οδικούς άξονες, αποτελώντας ιδανική επιλογή τόσο για ιδιοκατοίκηση όσο και για επένδυση.

Ενδιαφέρεστε για αυτό το ακίνητο;

Τώρα μέσω της ιστοσελίδας goldenhome.gr μπορείτε να στείλετε απευθείας αίτημα για ραντεβού υπόδειξης του ακινήτου που σας ενδιαφέρει. Η υπηρεσία είναι εντελώς δωρεάν, συμπληρώστε τα στοιχεία σας

Boiler : Ναι
Playroom : Όχι
Ανακαίνιση : Όχι
Ασανσέρ : Ναι
Δάπεδα : Κατ΄επιλογήν
Δορυφορική Κεραία : Ναι
Επιπλωμένο : Όχι
Ηλιακός : Ναι
Θέρμανση : Αντλία Θέρμανσης, Αυτόνομη
Κατοικίδια Δεκτά : Ναι
Καυστήρας : Όχι
Κλιματισμός : Split Κλιματιστικά
Κουζίνα : Ενιαία με τραπεζαρία, Φωτεινή
Κουζίνα (αριθμός) : 1
Πόρτα Ασφαλείας : Ναι
Σκάλα : Όχι
Τζάκι : Όχι
Τύπος Ρεύματος : Τριφασικό
Βεράντες : Μεγάλες
Εμβαδόν Οικοπέδου : 450
Εξωτερική Εμφάνιση : Άριστη, Μοντέρνο, Ωραία είσοδος
Κήπος : Ναι, Κοινόχρηστος
Περιβάλλοντας Χώρος : Κοντά στην Αγορά, Ήσυχη περιοχή, Κοντά σε Συγκοινωνίες
Πισίνα : Όχι
Τέντες : Όχι
Μπαλκόνια : Όχι
Ενεργειακή Κλάση : Α
Αποθήκη : Ναι
Αρ. Ορόφων : 4
Αρ.Διαμερισμάτων : 6
Ζώνη : Γενικής Κατοικίας
Θέα : Πλαινή
Θέση : Φωτεινό, Γωνιακό, Διαμπερές, Προσόψεως
Κατάλληλο για Εξοχική Κατοικία : Οχι
Κατάλληλο για Επαγγ.Xρήση : Οχι
Κατάλληλο για Φοιτητές : Ναι
Κατάσταση Ακινήτου : Νεόδμητο, Υπό Κατασκευή
Ποιότητα Κατασκευής : Άριστη κατασκευή, Πολυτελής κατασκευή, Σύγχρονη κατασκευή
Προσανατολισμός : Νοτιοανατολικό
Ρετιρέ : Όχι
Συναγερμός : Προεγκατάσταση
Τύπος Parking : Πιλοτής
Συγκοινωνίες : Λεωφορεία, Μετρό
Μισθωμένο : Όχι
Ενεργειακή Κλάση : Β

Υπολογιστής Δανείου

Ποσό Δανείου *Ελάχιστο ποσό δανείου 10.000€ Κυμαινόμενο Επιτόκιο: Euribor 3M (ενδεικτικά 2%) + spread (από 1,75%)+ εισφορά Ν.128/75 (0,12%) Σταθερό Επιτόκιο: από 2,8% + εισφορά Ν.128/75 (0,12%)
Επιτόκιο
Έτη Αποπληρωμής

Παράδειγμα: Δάνειο 100.000€, συνολική διάρκεια 30 έτη. Για τα τρία πρώτα έτη τελικό επιτόκιο 2,92% και τα υπόλοιπα 27 έτη τελικό επιτόκιο 4%. Ενδεικτική δόση για τα τρία πρώτα χρόνια ~420€ και για τα υπόλοιπα 27 έτη ~500€

Ποσό Ενδεικτικής Δόσης

Τελικό Επιτόκιο:
*Tο τελικό επιτόκιο διαμορφώνεται βάσει του προγράμματος του στεγαστικού δανείου (κυμαινόμενο, υβριδικό, σταθερό) και του προφίλ του δανειολήπτη.

Ψάχνετε για το τέλειο σπίτι; Λάβετε τη χρηματοδότηση που χρειάζεστε! Κάντε κλικ στο κουμπί παρακάτω για να δηλώσετε το ενδιαφέρον σας για ένα στεγαστικό δάνειο.

ΤΗΛΕΦΩΝΟ